Casa semindipendente in vendita

Castions Di Strada, Via Ronchis
€ 45.000
Prezzo aggiornato
4 locali 4 locali
182 Mq 182 Mq
2 bagni 2 bagni

Casa semindipendente in vendita

Castions Di Strada, Via Ronchis

Descrizione annuncio

Tecnocasa la più grande rete di intermediazione in Europa con 2807 punti vendita in Italia e 4022 nel mondo vi propone:

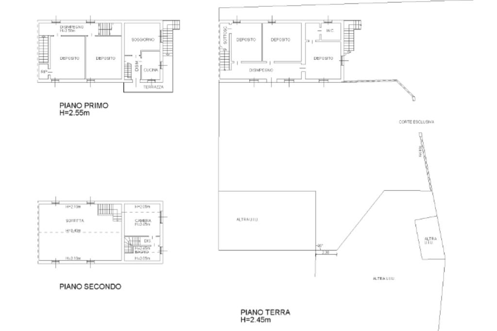
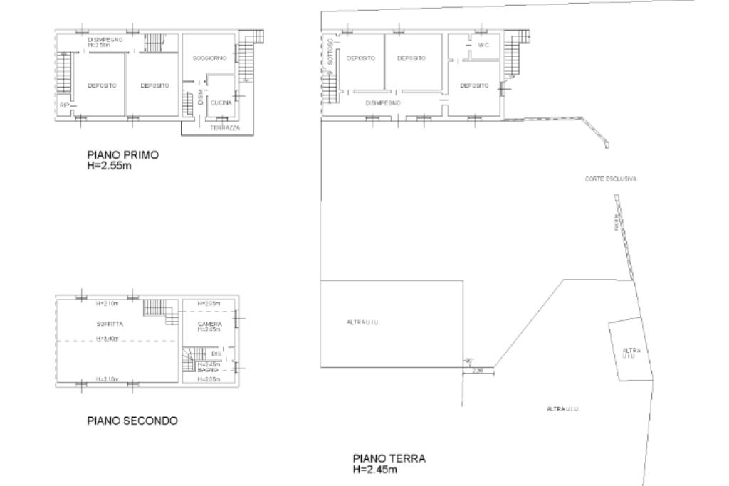
Nel cuore di Castions di Strada, rustico dalle ampie dimensioni, perfetto per chi cerca una soluzione in zona tranquilla ma vicina ai principali servizi.

Distribuito su più livelli, l'immobile offre spazi generosi e versatili. Al piano terra, si trovano soggiorno, cucina, ripostiglio e bagno finestrato. Al piano superiore sono presenti due camere da letto. L'ultimo piano è adibito a soffitta.

Con ingresso indipendente è presente anche un mini appartamento su due livelli. Il primo piano presenta la cucina e il soggiorno. L'ultimo piano offre una camera da letto e il bagno finestrato.


L'immobile necessita di una completa ristrutturazione, offrendo l'opportunità di creare un ambiente su misura.

Il lotto di 1100mq circa è interamente edificabile e comprende anche un deposito su due livelli.

Mostra tutto

Nelle vicinanze

Scuole Scuole
Scuola Secondaria di Primo Grado Ugo Pellis
300 m
Scuola Primaria Guglielmo Marconi
350 m
Farmacia Farmacia
Farmacia Foramitti
450 m
Negozi Negozi
Panificio Pasticceria
2,7 Km
Bar Bar
Bar Sport
2,6 Km
Ristoranti Ristoranti
Ristorante Pizzeria Napoleone
1,4 Km
Mondelli Stable
1,6 Km
Mostra tutto

Caratteristiche

Rif.:
61177616
Piano:
Su più livelli di 3
Totale piani:
3
Box:
1
Posti auto:
2
Balconi:
1
Mostra tutto
Prezzo Prezzo
€ 45.000
Rata mutuo Rata mutuo
€ 214 / mese
Spese annue Spese annue
€ 0
Proponi il tuo prezzoProponi il tuo prezzo

Classe Energetica

G
G
G
G
G
G
G
G
G
EP globale non rinnovabile:
261.74 kW h/m² anno
EP globale rinnovabile:
51.36 kW h/m² anno
EP invernale del fabbricato:
EP estiva del fabbricato:
Anno di costruzione:
1940
Riscaldamento:
Assente

Prezzo ridotto di €1 (10%%)

Ti interessa visionare l'immobile?

Fissa un appuntamento  Fissa un appuntamento

Richiedi informazioni

Clicca su Leggi per aprire l'informativa
* Questi campi sono obbligatori

Calcola il tuo mutuo

Semplice e senza impegno
Anticipo

( % )
Mutuo

( % )

pochi semplici passi

inserisci i tuoi dati
Questionario completato
Grazie per aver richiesto un appuntamento senza impegno con un nostro Consulente del Credito e Assicurativo.

Hai inserito correttamente tutti i dati necessari e a breve riceverai una e-mail con un link da convalidare per inviare i tuoi dati.
Affiliato
Palmanuova Srl
Borgo Aquileia, 3 33057 Palmanova (UD)

Il nostro staff


  • Mattia Baccino
    Affiliato

  • Enrico Geremia
    Collaboratore

  • El Mehdi Gouit
    Collaboratore
Borgo Aquileia, 3 33057 Palmanova (UD)
Zona: Palmanova
Mostra su mappa
Orari: lunedì-venerdì dalle 9 alle 13 e dalle 15 alle 19.30. Sabato dalle 9.30 alle 13. Il pomeriggio del sabato e la domenica siamo a disposizione su appuntamento.
Affiliato
Palmanuova Srl
Borgo Aquileia, 3 33057 Palmanova (UD)

2026 Tecnocasa Franchising S.p.A. - P. IVA 08365160152 - Via Monte Bianco 60/A 20089 Rozzano (MI). Ogni agenzia ha un proprio titolare ed è autonoma. Privacy policy | Policy utilizzo | Cookie policy